Punta Umbría tendrá un centro sociosanitario en los terrenos del antiguo camping sindical

Las obras del nuevo complejo asistencial comenzarán el próximo febrero

Punta Umbría corona a los Reyes Magos de su Cabalgata 2024

Vista de Punta Umbría.
Vista de Punta Umbría. / Josué Correa
R. P.

Punta Umbría, 22 de diciembre 2023 - 19:09

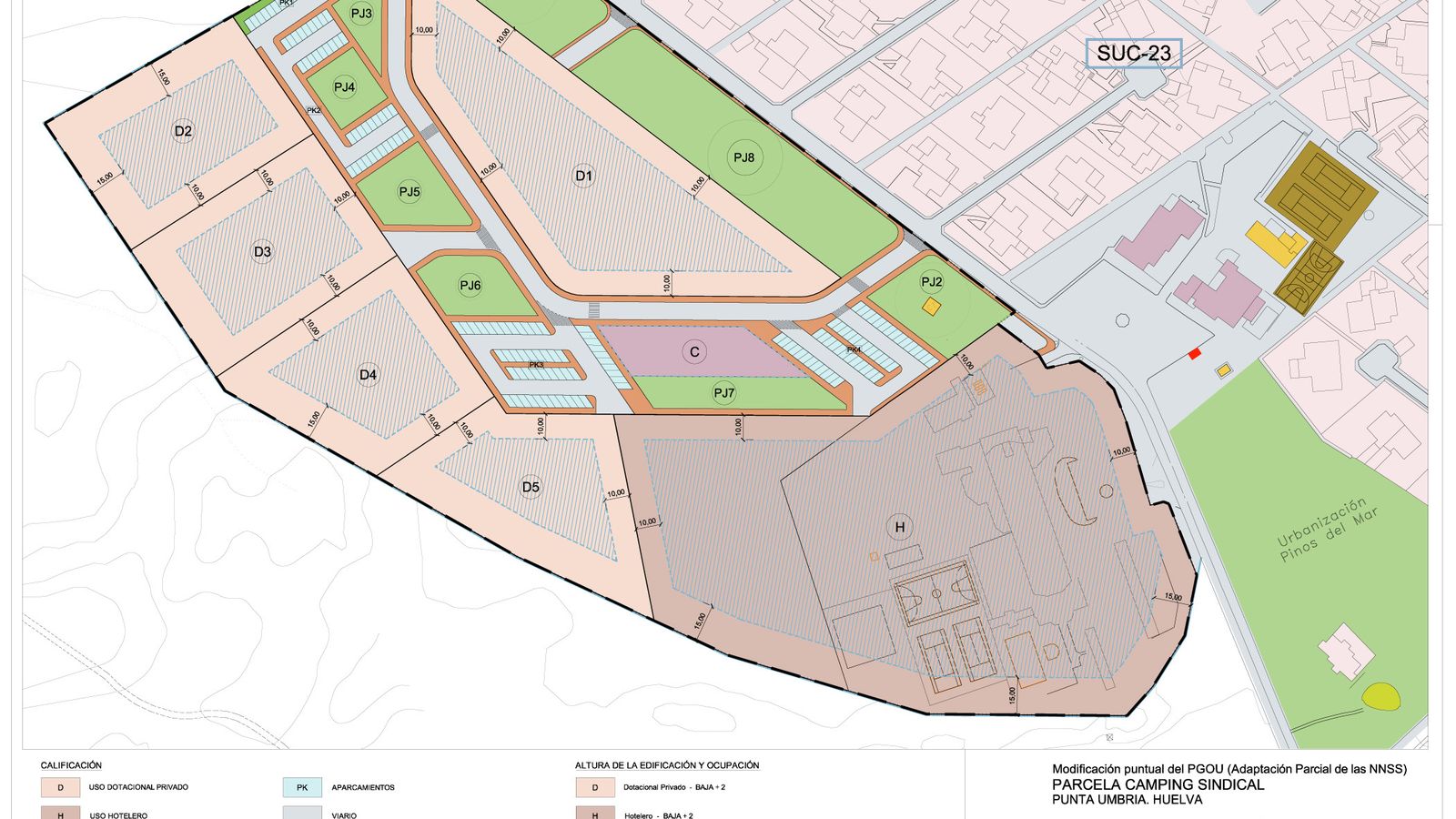
Punta Umbría aprobó este viernes el proyecto de urbanización con el que se iniciará la construcción de un complejo asistencial sociosanitario para personas mayores en los terrenos del antiguo camping sindical, frente a Pinos del Mar. El inicio de las obras está previsto para febrero.

Se trata de un lote de cinco parcelas dotacionales, cuatro de ellas con una superficie de aproximadamente 5.000 metros cuadrados cada una y otra de casi 10.000. La actuación conlleva la urbanización completa de toda la zona, con jardines, viarios públicos y aparcamientos.

El plano del proyecto.
El plano del proyecto. / M. G.

La empresa adjudicataria, Punta Umbría Resort Senior S.L, además de urbanizar todo este espacio, ejecutará las dotaciones vinculadas a la atención y se encargará de la gestión y explotación de los servicios.

Este proyecto se suma al cohousing senior que se levantará en la parcela de equipamiento número 2 del Sapu 3 y 4, situada detrás del centro comercial Punta Almenara. Por este motivo, el alcalde, José Carlos Hernández Cansino subrayó que “estamos diversificando la oferta turística de Punta Umbría más allá del sol y playa, conjugando lo turístico y lo social, lo que redunda en la desestacionalización y en la creación de riqueza para el municipio”.

En este sentido, el regidor municipal subrayó que “desde que accedimos a la alcaldía no hemos dejado de trabajar para desbloquear todas las iniciativas que estaban olvidadas, con el objetivo de seguir impulsando el desarrollo económico y la promoción de empleo en nuestro pueblo”.

stats