Acuerdan retirar los escombros de la parcela de los antiguos depósitos de Punta Umbría

La escombrera situada en la avenida Ciudad de Huelva será retirada y se creará así una zona de aparcamiento

La novedosa residencia de mayores de Punta Umbría, cada vez más cerca

La escombra en la avenida Ciudad de Huelva de Punta Umbría.
La escombra en la avenida Ciudad de Huelva de Punta Umbría. / M. G.
R. P.

Punta Umbría, 29 de enero 2024 - 20:33

El Ayuntamiento de Punta Umbría firmó este lunes una providencia con la que se inician los trámites para que una empresa se haga cargo de la retirada de los escombros de la parcela de los antiguos depósitos, en la avenida Ciudad de Huelva.

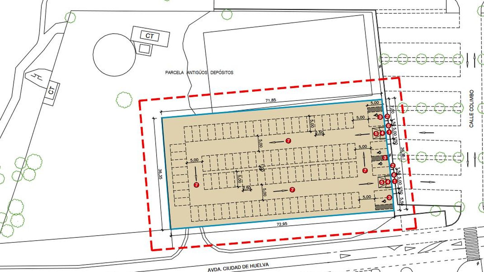
Según el documento, la empresa contratada asumirá los costes de la retirada de los escombros y la adecuación de la parcela en la que se encuentran para su uso como bolsa de aparcamiento regulado, que entrará en funcionamiento en junio de 2024, justo con el arranque de la temporada estival. Se crea así una zona de aparcamiento en la parcela contigua a la bolsa disuasoria Zona Roja-Cuartel de la Guardia Civil, doblando por lo tanto la actual zona de estacionamiento.

Plano de actuación en la escombrera.
Plano de actuación en la escombrera. / M. G.

En palabras del alcalde, José Carlos Hernández Cansino, “pondremos fin a una imagen nefasta que como municipio turístico estamos dando, con esa escombrera en una de las entradas a nuestro pueblo, al tiempo que crearemos una importante bolsa de aparcamiento, tan necesaria en esa zona”.

Conforme a la memoria técnica que ha elaborado el Ayuntamiento, la empresa se encargará de gestionar, contratar y asumir el coste de ejecución de los trabajos necesarios con una empresa especializada. El Ayuntamiento por su parte asume la dirección y la supervisión de las obras. Además, el coste máximo de la actuación asciende a 40.322,31 euros, sin IVA. Este importe será repercutido al Ayuntamiento de Punta Umbría con cargo a la liquidación del canon variable correspondiente al servicio de regulación de la zona ORA, de 2024 a 2027.

stats