El Cementerio Británico de Huelva contará con un punto de información turística

El camposanto será objeto de obras de reforma que incluyen la reparación del muro perimetral y de daños en elementos pétreos de las tumbas, limpieza y desbroce de la vegetación

El Cementerio Británico se convertirá en un nuevo atractivo turístico de Huelva  

Tumbas en el Cementerio Británico de Huelva.
Tumbas en el Cementerio Británico de Huelva. / Rafa García

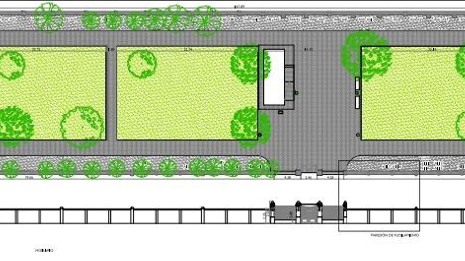
El Cementerio Británico contará con un punto de información turística. El módulo prefabricado de estructura metálica se instalará en la entrada, en la plaza central que se creará entre las zonas ajardinadas. La actuación se incluye en las obras de reforma, financiadas por la Consejería de Turismo, Regeneración, Justicia y Administración Local, dentro del Plan Turístico de Grandes Ciudades. Éstas contemplan la reparación del muro perimetral, la puerta de entrada y daños en elementos pétreos de las tumbas, limpieza y desbroce de la vegetación.

El Ayuntamiento de Huelva ha sacado a licitación las obras de rehabilitación y puesta en valor del Cementerio Británico por una cuantía de 443.025,23 euros. El plazo máximo para la ejecución de la actuación es el 31 de julio de 2025.

El cementerio, ubicado en una parcela de 3.675 metros cuadrados, se encuentra ubicado junto al de La Soledad. En él hay 135 tumbas en el perímetro del camposanto. Desde mayo de 1932 se llevan a cabo enterramientos en este espacio y hay tumbas fechadas en 1990. A éstas se unen los traslados, 115 enterramientos, realizados desde el viejo cementerio de San Sebastián, donde había un sector para la Iglesia Evangélica. Desde su puesta en funcionamiento el Cementerio Británico no ha contado con el adecuado mantenimiento.

Según se recoge en el proyecto, la puerta de entrada, realizada con ladrillo visto y cerrajería metálica, presenta grietas y falta de mortero en la parte del ladrillo, y en la cerrajería metálica hay oxidación y corrosión.

Recreación de la remodelación del Cementerio Británico
Recreación de la remodelación del Cementerio Británico / M.G.

En cuanto al muro perimetral, de ladrillo y mortero de cal, el revestimiento se encuentra muy deteriorado con humedades, fisuras e incluso desprendimiento de ladrillos en gran parte de la superficie. A la derecha de la puerta de entrada, un tramo de unos 12 metros de longitud, "hay un desplome acusado hacia el interior del recinto. Este paramento muestra impactos de munición, se trata del Paredón de Fusilamiento del Cementerio de La Soledad, elemento de Memoria Histórica que la intervención marca como elemento a mantener mediante medidas de refuerzo descartando así la reconstrucción del tramo".

En el tramo colindante con el Cementerio Municipal de La Soledad, al norte, se localiza un pino con un tronco de gran porte caído sobre el muro medianero "que ha ocasionado importantes daños sobre éste afectando puntualmente a la cubierta del módulo de nichos del cementerio católico y la rotura de uno de los contrafuertes".

Aparte de la mejora y adecuación de lo existente, se creará un recorrido interior marcado por la disposición de los enterramientos, en paralelo al contorno del muro. A este recorrido se accederá a través de la plaza central, que se dotará de mobiliario público y dividirá el espacio ajardinado en dos islas de vegetación, en las que se encuentran los ejemplares de árboles que se mantienen como los pinos de gran porte y alguna palmera, y son atravesadas por unos caminos secundarios perpendiculares que acortan la dirección predominante norte-sur del recorrido del contorno. 

Respecto a la limpieza y desbroce de la vegetación, se eliminará el pino caído y aquellos ejemplares arbóreos que han crecido de manera descontrolada y afectan a muros y enterramientos. La intervención en los enterramientos y elementos funerarios consistirá en la limpieza de los mismos, rehabilitación y sustitución de elementos ornamentales.

Fue por petición del vicecónsul inglés Eduardo Díaz que se construye a finales del siglo XIX un sector para la Iglesia Evangélica en el cementerio de San Sebastián. Tras el cierre del camposanto, los restos se trasladaron al Cementerio Británico a finales de los años cuarenta del siglo pasado.

stats