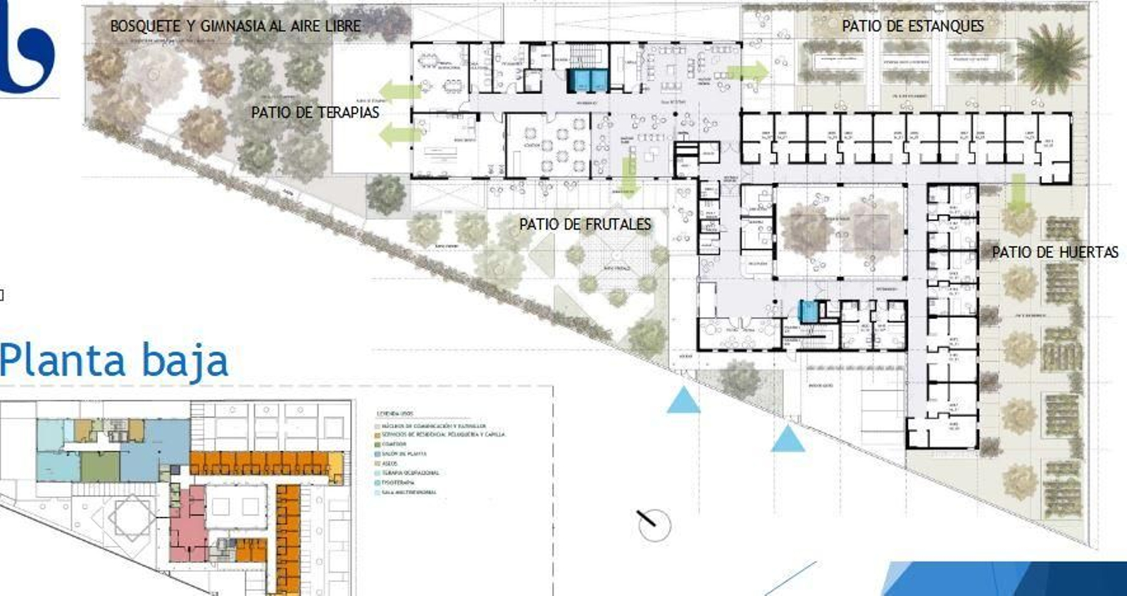
Plano general de la residencia de ancianos.
Plano general de la residencia de ancianos. / M.G.

Así será la residencia de ancianos del Ensanche Sur de Huelva

Tres patios, un garaje, tres plantas y zona ajardinada. La residencia de ancianos que comenzará a construirse después de verano tendrá vistas a la Ría y una zona de fisioterapia, terapia, gimnasio, sala multisensorial y zona médica. ¡Así quedaría el complejo!

Uno de los espacios exteriores en otras residencias de Ballesol
1/8 Uno de los espacios exteriores en otras residencias de Ballesol / M.G.
Así será la residencia de ancianos del Ensanche Sur
2/8 Así será la residencia de ancianos del Ensanche Sur
Así será la residencia de ancianos del Ensanche Sur
3/8 Así será la residencia de ancianos del Ensanche Sur
Así será la residencia de ancianos del Ensanche Sur
4/8 Así será la residencia de ancianos del Ensanche Sur
Así será la residencia de ancianos del Ensanche Sur
5/8 Así será la residencia de ancianos del Ensanche Sur
Así será la residencia de ancianos del Ensanche Sur
6/8 Así será la residencia de ancianos del Ensanche Sur
Así será la residencia de ancianos del Ensanche Sur
7/8 Presentación de los planos de obras en el Ayuntamiento de Huelva / Natalia Prieto
Así será la residencia de ancianos del Ensanche Sur
8/8 Presentación de los planos de obras en el Ayuntamiento de Huelva / Natalia Prieto

También te puede interesar

Lo último

stats